Voltar

Gás > Medidores Tipo Diafragma

Diafragma G6 a G25

Aplicações

Fluidos: gás natural, gás cidade, propano, butano, ar*

Indústria: distribuição de gás

Funções: medição de gás em condições de operação**

 

Informações Breves

Os medidores de gás de membrana para uso comercial BK-6, BK-G10, BK-G16 e BK-25 atendem às mais elevadas exigências em termos de precisão de medição e segurança. Eles incorporam tanto funções inovadoras quanto a experiência de muitas décadas na medição de gás. Os medidores BK-G10 e BK-G16 são fornecidos na versão com envolvente engastado com conexões monotubo ou bitubo.

O deslocamento das membranas é controlado pneumaticamente, o que garante baixas cargas nos rolamentos e uma operação silenciosa.

A utilização de materiais e componentes de alta qualidade, assim como o sistema de controle de câmaras "K" patenteado, garantem um padrão de alta qualidade. O sistema "K" coordena perfeitamente o movimento das válvulas com o fluxo real de gás para as câmaras de medição, assegurando uma excelente linearidade, mesmo com válvulas pequenas.

Devido às comportas otimizadas, o Qmín dos modelos BK é estável e os medidores de gás não são suscetíveis à contaminação (RPF 0,8 conforme BS 4161). A unidade de medição é ajustada através de um sistema patenteado de indicador e escala.

Embora o design dos modelos BK seja extremamente robusto, os medidores de gás continuam sendo instrumentos de medição e, como tal, devem ser manuseados com cuidado.

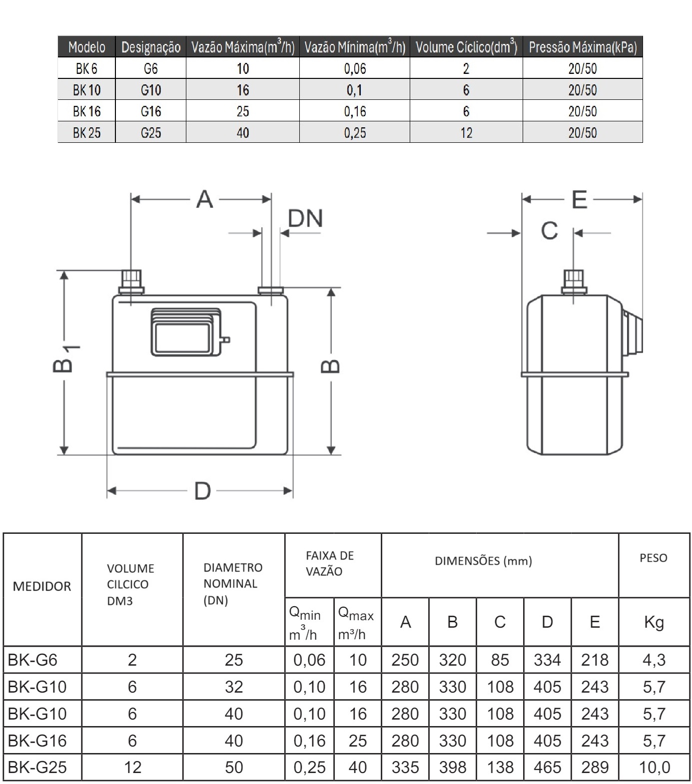
Características Técnicas e Dimensões

Características Principais

  • Certificação INMETRO: Homologado em conformidade com Portaria 156/2022.
  • Caudais:
    • G6: 0,06 m³/h a 10 m³/h
    • G10: 0,1 m³/h a 16 m³/h
    • G16: 0,16 m³/h a 25 m³/h
    • G25: 0,25 m³/h a 40 m³/h
  • Pressão máxima de operação: 0,5 bar.
  • Alta resistência térmica (HTB): Até 0,1 bar conforme EN 1359.
  • Alta precisão e confiabilidade: A longo prazo.
  • Revestimento: Pó cinza claro conforme RAL 7035.
  • Equipados com ímã no relógio: Possibilidade de acoplamento posterior de um emissor de impulsos de baixa frequência BF (1 impulso = 0,1 m³).
  • Não suscetíveis à contaminação: RPF = 0,8.
  • Faixa de temperatura:
    • Padrão: -10 °C a +40 °C.
    • Outras temperaturas disponíveis sob consulta.
  • Disponíveis com compensação de temperatura.
  • Tecnologia de totalizador inteligente: Sistema Chekker, Absolut-ENCODER e aplicações.
Diafragma G6 a G25

Produtos Relacionados